符合標準:
UL484
UL1598《燈具標準》
UL1993《自鎮流燈和燈適配器》第24條及圖24.1及24.2
用途:
UL淋雨試驗裝置它通過噴淋系統模擬雨水的特性和過程,通過控制噴淋強度、時間和周期等參數,對產品進行潮濕環境下的耐候性測試,也可以用于評估電子設備的防水性能。
它通過將設備置于模擬降雨的環境中,檢測設備是否能夠抵御雨水的侵入,以保證設備的正常運行。
這種測試的目的是提高設備的可靠性和穩定性,從而提高設備的整體性能和品質。
應用背景:
自然界水(雨水、海水)對產品和材料的破壞,每年造成難以估計的經濟損失。所造成的損害主要包括腐蝕、褪色、變形、強度下降、膨脹、發霉等,特別是電器產品因雨水造成短路而極易釀成火災。因此針對特定的產品或材料進行外殼防護水試驗是必不可少的一道關鍵程序。
應用領域:
1、電池包、動力電池、驅動電機、新能源、汽車車燈、車載攝像頭、汽車連接器、光伏、儲能柜、儲能箱、電力機柜、戶外柜、戶外電站等電子產品。
2、各種電器產品、照明設備、儀器設備、智能機器人、相機設備、辦公電腦、平板電腦、手機、藍牙耳機、智能手表等電子產品。
3、連接器、傳感器、汽車零部件、公交車、摩托車、電動汽車等電子產品。
4、任何需要測試防水性能或評估產品在潮濕環境中的性能和可靠性的產品,都可能需要使用UL淋雨試驗箱。
試樣范圍:
自鎮流燈和燈適配器及其他燈具
UL淋雨試驗裝置的特點:
1、UL淋雨試驗裝置適用于進行產品的UL淋雨測試。
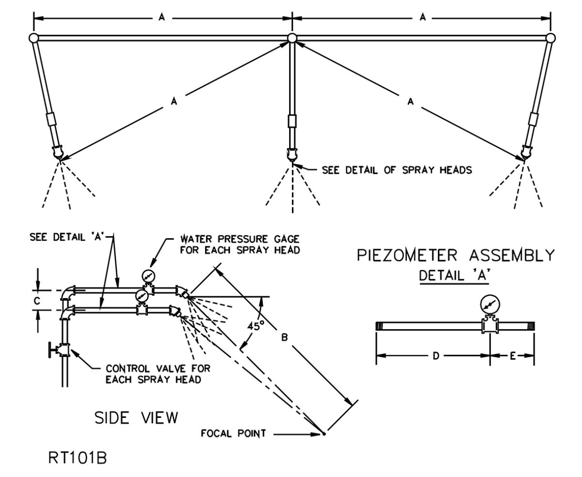
2、UL試驗裝置噴水位置:上方3個UL噴嘴。
3、UL淋雨試驗裝置機架部分采用成型鋁材料制作而成,結構穩定,且易清潔。
4、噴嘴架可移動,通過手搖不銹鋼輪裝置自由升降。
5、UL淋雨試驗裝置采用UL實驗室原裝進口噴嘴,完全符合UL標準。
6、支架底座采用萬向帶剎車腳輪,方便移動和固定。
技術參數:
|
噴頭
|
3個,符合UL1598圖19.17.2
|
|
噴頭噴射的角度
|
45°
|
|
噴水壓力
|
34.5Kpa
|
|
結構
|
噴頭間距:710mm,符合UL1598圖19.17.1,
可升降,各噴頭配置獨立閥門
|
|
壓力表
|
3個,量程0.25MPa,距離噴頭75mm
|
|
外形尺寸
|
WDH=1500mm×400mm×1500mm,重量80kg
|

